画像
商品コード
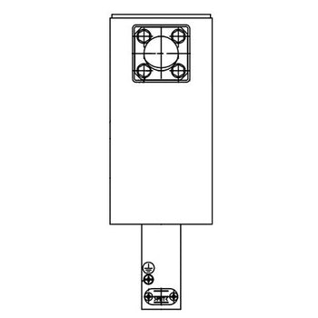
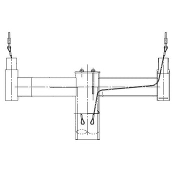
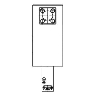
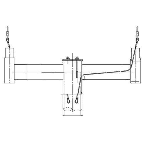
型式(詳細情報)
色
種類
材質
出荷目安
販売価格
ご注文数量
再入荷通知
欠品・在庫が追加の 場合に通知します
欠品・在庫が追加の 場合に通知します
DYDX2019
ミディアムグレーメタリック
モールライト[電源内蔵型]2灯用
鋼管(環境配慮型溶融亜鉛メッキ後ポリエステル樹脂粉体焼付塗装)
5営業日出荷
40,814円
税込 44,895円
税込 44,895円












